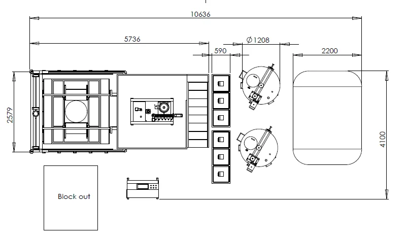
Полный автоматический непрерывный горизонтальный блок PU вакуумная пенопластовая машина

Share on (1100013715643):


Price:

Quantity:


Product Overview

Description

Product description is temporarily unavailable. Click "Buy" for details

0.202 s.