Аэратор для продажи, погружной септический резервуар, аэратор от производителя в Чжэцзян

Share on (1600427372170):


Price:

Quantity:


Product Overview

Description

















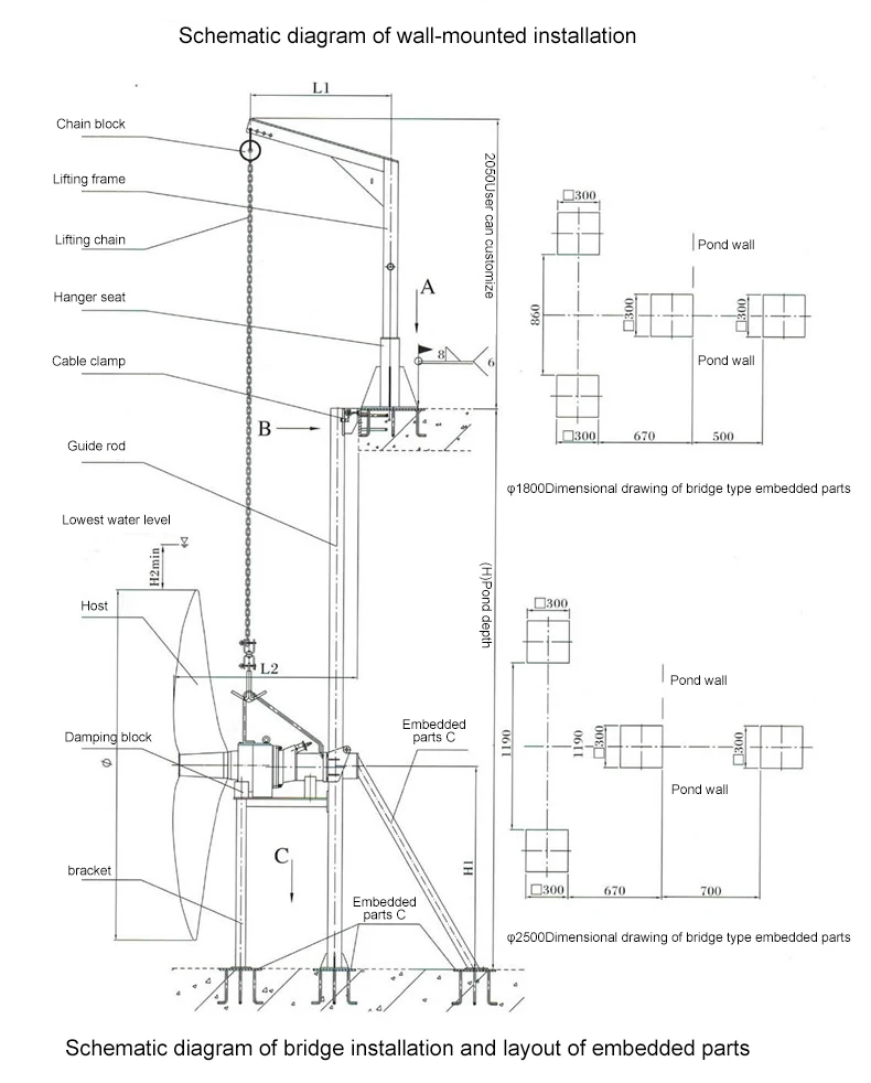
The special installation system of the submersible mixer can be used when there is no need to discharge the sewage in the pool
Under the circumstances, the submersible mixer can be quickly installed and disassembled. It is recommended to use installation system I when the pool depth H is less than 4 meters. The diving depth of the submersible mixer can be based on. It needs to be adjusted in the vertical direction, and the large angle that can be rotated around the guide rod in the horizontal plane is ±
Expansion bolts are used for the connection surfaces of the 60° lifting system base, support frame and lower bracket and the pool
Fixed, no need to reserve holes. When the pool depth H> 4 meters, it is recommended to use the installation system II, a concrete foundation (or steel Structural base). The relevant connection surface of the lifting system base, the steel rope fixing frame and the guide base and the pool All are fixed with expansion bolts, no need to reserve holes. The installation system II replaces the guide rod with a guide steel rope, It has the characteristics of convenient transportation and simple on-site installation. Thesystem fundamentally avoids transportation due to Causes the guide rod to bend and deform, which affects normal use, andeffectively improves the depth of the pool. In this case, due to the installation error of the guide rod, it cannot be lifted normally. Cantilever Under the installation conditions of the pool top (pictured), it is more convenient and reliable to operate.
When the customer places an order, please provide the pool depth H and the pool shape diagram so that the manufacturer can determine the guide rod or guide steel during processing The size of the wire. The material of the installation system is made of stainless steel (or carbon steel). In addition to the guide in the installation system In addition to the rod or guide wire, and the lifting base, multiple mixers can share a set of lifting devices (the user has special Except for special records).








Installation Precautions :
The guide rod or guide wire should be vertical to the horizontal and can be corrected with a plumb weight;
When the hook is lifting the submersible mixer, the end of the impeller should be raised 5-10° above the horizontal surface
Through the adjustment of the chain on the lifting device, the lifting hook and the lifting center of gravity of the submersible mixer are on the same vertical line when the submersible mixer slides down the guide rod or guide wire. Customization instructions: Parameters to be provided for selection: pool type, pool length*width*height Need to provide when inquiring: motor power, impeller diameter, whether to install the system, type 1 or type 2 hand hoist type installation system (indicate the material of the installation system)


0.2085 s.