plasterboard lift schmalz type for glass vacuum on cutting machine

Share on (1600694052452):


Price:$4,300.00

Quantity:


Product Overview

Description



Products Description




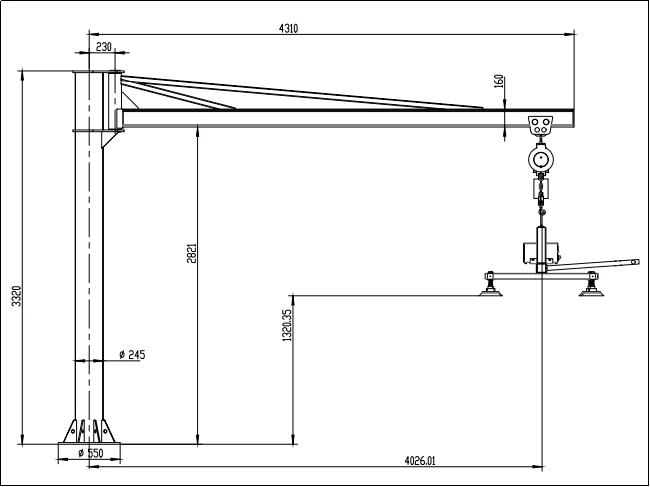
The Vacumaster, is a kind of industrial handling system, by the column, the slewing arm, the slewing drive device and the electric hoist or pneumatic cylinder composition, light self-weight, big working radius, high lifting weight capacity.
Using Jib crane type handling systems to load and unload metal sheet to punching machines, bending machines or CNC laser cutting systems reduces downtime while protecting the surface of sensitive work pieces.














Company Profile








Contact Us for More Details!


0.1954 s.