Share on (1600810416211):
UB-4.0F Manual Two Side Release Hydraulic Lift 4.0ton








Feature :
Bilateral unlock manually. Lifting machine cable tubing
all hidden, appearance is beautiful and easy. The international
standard of mechanical safety device. Double insurance self-locking device, easy operation safety. Adopt two synchronous connection cable, compulsory two sliding table synchronous moving, effectively prevent the vehicle tilt. Has a high intensity precision lifting arm rotation Angle locking devices, to prevent the accident. Rise arm automatically lock, automatically unlock fell the ground. Second section can be easily adjusted spiral lifting pallet height, more easy to locate the car, is suitable for low chassis more vehicles. End of the cylinder is equipped with throttle valve, even blowout, also can ensure safety. The rubber door fenders as standard, can effectively prevent the door damage.
Specification:
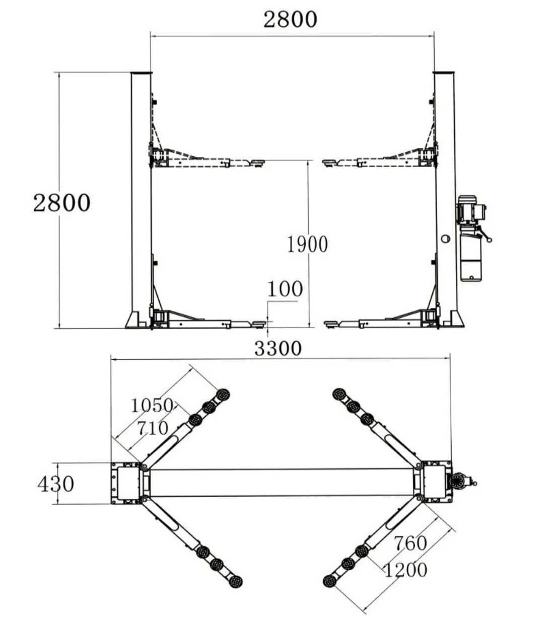
Model | Lifting Capacity | Lifting Height | Height of Post | Total Width | Width Between Post | Power Supply |
| UB-4.0F | 4.0ton | 1900mm | 2800mm | 3300mm | 2800mm | 380-415V/110-240V |







Our CE certificates and ISO certificates



Exhibition and Our clients


What is your lead time ?
The delivery time will be detrmined according to the quantity of the order. usually 20-30days
What is the MOQ of your product?
1 unit
What is the warranty time ?
1 year
What is your payment terms?
100% in advance (T/T or credit card)
30% advance and balance payment before delivery
Can i get discount from buying your goods?
The price depends on the quantity,we will automatically making discount to our customer
Our location voltage is 220v,60hz,does it ok for me?
That’s no problem,we will according to your local to adjust the voltage and plug for you
How about your service?
1. If you have any question, please don't hesitate to contact us,all questions will be replied within 24 hours
2. We greatly appreciate your Positive Feedback. PIs do NOT leave negative feedback without asking for help.
3.Our aim is to provide Top Level Customer Service, so we will try our best to solve any problems
New products from manufacturers at wholesale prices