Tobee Effluent Handling
$12,600
Share on (1601048608709):
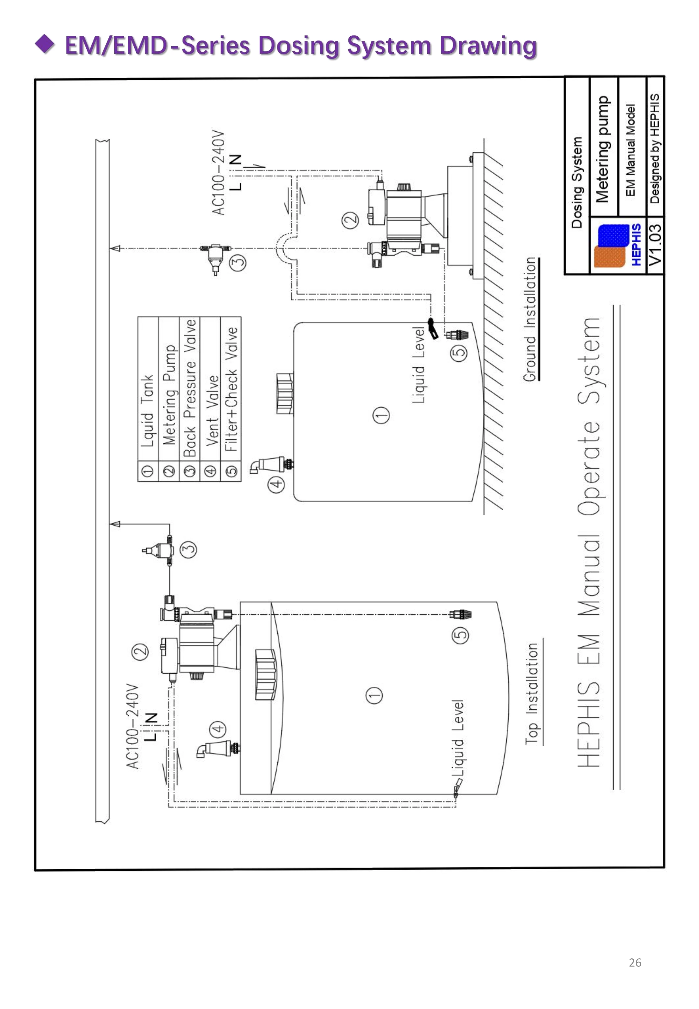
HEPHIS E-SERIES Electromagnetic diaphragm metering pump is suitable for water treatment equipment and water treatment engineering.













New products from manufacturers at wholesale prices