Share on (1601195925554):

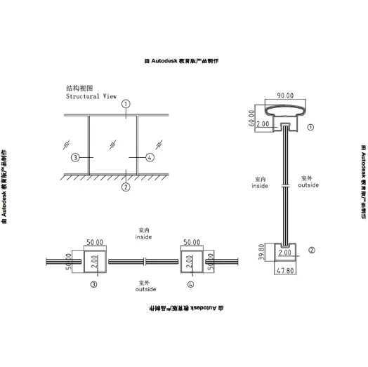
Product name | RG90 Exposed Frame Railing |
Glass Option | 6+0.76+6(clear tempered glass) |
Wall thickness | 2.0mm or 2.5mm |
Width of frame | 90mm |
Width of column | 50mm |
Experience | 20years |
Color | Customized |
Features | Simple profile structure,cheap |
Application | For balconies and corridors |














New products from manufacturers at wholesale prices