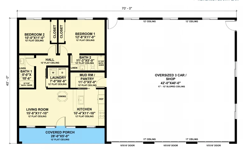
Single Story 2 bedroom Barndominium House Homes with 3 Car Garage and Workshop Prefab Steel buildings 90 SQM

Share on (1601243912610):


Price:

Quantity:


Product Overview

Description


Daquan light steel structure prefab house with EPS cement sandwich panel


 


 


Wuhan Daquan Green Building Material Group Co.,Ltd.


 


We provide all construction decoration materials, complete installation drawings, installation guide service and send engineers to ensure turnkey projects.



Material


 1.jpg




EPS Cement Wall Panel Advantages



1.Heat Insulation And Preservation
The energy saving feature of Daquan energy-saving boards chiefly embodies in heat preservation and insulation. Major material adopt anti-freezing and heat preservation environmnetal protection materials polysyrene grains with good heat insulation and preservation function, which could adjust the indoor temperature at a constant range, thus achieving the effects of ecological adjustment.

2.Water Proof, Fire Proof
The face panel of Daquan energy-saving boards on both sides are 4.5mm silicon-calcium fire proof boards and the main material is a mixture of cement, sand, fly ash and so on. Daquan enengy-saving boards have a fire proof limit of 4 hours against a hign temperature of 1000℃ and incombustibility standard achieve national level A. Besides, these material give out no toxic gas and perfectly meet the international environment protection criterions. The test also prove that water container can be made by Daquan panel with no need for plastering and the containers have no leakage at all.

3.Sound Insulation And Absorption
The inside constructional material(EPS polystyrene grain) has good sound insulation and sound-absorbing functions.

4.Easy Construction And Shorter Time
The construction work with traditional blocks taking 12 people 60 minutes to complete will only need 3 people to spend 60 minutes to finish if they use Daquan boards which can save a lot of labor cost for the construction part.

5.High Intensity And Quake Proof
Daquan energy-saving products all with high intensity and the earthquake resistance function can reach to 8.5 magnitudes. And shock resistace function is dozens times higher tha other wall material. They can be nailed directly or have expansion bolt to lift and hang heavy things, they also can be covered by ceramic tile, wall paper, wood panel, coating etc.

6.Space And Cost Saving
The thickness of Daquan energy-saving products are between 60mm to 180mm. They can increase the building spaces compared to the traditional blocks. The weight is only 1/12 of traditional wall body, and save the cost on construction structure.




Product Description


panel2.jpg 


 panel1.jpg


 roof.jpg


panel4.jpgpanel3.jpg


house6.jpg





Packaging & Shipping


panel5





FAQ


1. Q: Since when your company started producing this product? What's the annual output now? What are the advantages of your EPS cement sandwich panel?


A: Since 2005 we got a sample from Australia, our boss made research into it, tried several times and then start the stable production. The annual output is about 1000, 000sqm per year, and about 1000 units house with factory production base 160000m2 which is the largest EPS sandwich wall panel factory in China even all over the world.
Our panel's outstanding advantages are light weight, heat insulation, waterproof, fireproof, sound insulation, fast construction and so on.

2. Q: Is the panel fire rated, if so, what is the rating?
A: Theoretically, it can endure the fire for 4 hours in the heat of 1000c. But in fact, it is incombustible.

3. Q: Do you have any certificate to help us get government's approval?
A: We can supply our ISO & CE certificates, test reports, SGS & BV certificates as your support document. Since the building standards are different in various countries, most of our customers buy the panels for test and get approval by themselves.



4. Q: I need samples for customer approval, will this be possible?
A: We can provide sample at your required size, but we will not afford the cost of the mail, because we always receive requirements for delivery of the panel sample, therefore, we just can offer you the free sample without paying the delivery cost. Besides, we suggest you to buy a small container with various sizes, the whole panel is more effective and persuasive for test than small samples.


 


5. Q: I am very interested in the product in your alibaba shop, could you send me the quotation and floor plan? How to purchase house from you?


A:Most of pictures on alibaba are just for reference, no drawings. But we have the professional design team for best service by charge.


We really hope you could send us your own floor plan for calculation and quotation,but if you do not plan to ask one local designer to make a floor plan, we can send you our model houses PDF for your choice and make a decision.


Our engineers need architectural drawings that can make calculation and they are professional steel structure engineers if you need steel frame drawings we can help,but not professional in architectural drawings.


 


6. Q: Can you tell me your rough price and what will be included in the house quotation?


A:Our estimated price is about 150~220USD per SQM, which includes 9 parts:


Roof material ,wall material , steel frame,ceiling,tiles ,door and window ,kitchen , bathroom , wall decoration.


If you want to add more extra parts such as electrical and water system,luxury shower room & bathtub,solar system and so on, please inform us to add in the quotation.


 


7. Q: Can you send workers here to install? What else costs will exist to help me make a budget?


A:We have many workers for our domestic projects and also can be sent abroad, but It is a large cost for customers which we dont suggest, because you will pay the tickets,visa,living,meal, salary(usually 80usd/ day) of the workers, much more expensive than that you find workers in local.


If after we confirm the order and send you all the tech drawings,your workers and architect still have problems installing, you can ask us to send at least 2 engineers abroad for guidance, then you just need to pay the 2 engineers costs.


The whole house costs will be 5 parts in your budget:


-All house materials from us shipping by containers.


-Concrete base and house installation by local workers


-Engineer(s) from China for guidance.(if needed)


-Destination port and tax.


-Furniture purchase like beds after house installation is finished.


 


8. Q: Could you please tell me the shipping cost to our country?


A: Yes of course please inform me which sea port the house materials will be delivered to and then we can ask the shipping container cost from the shipping company.


 


9. Q: Are your house container house and read-made?


A: Sorry container house is not our product which is temporary housing, what we build is permanent housing with EPS sandwich cement wall panel & steel structure,which has 70 years lifespan,not read-made houses,but easy-assembled.


All of our house materials are loaded by containers but not container house,you should find workers in local to build.


 


10. Q: What is the production time, delivery time and installation time?


A: The production time is usually 20~30 days, delivery time is usually about 30~35 days by sea.


Usually one 150m2 house usually needs 4~6 workers to finish in 15~20 days.


 





Project Inside


 inside one.jpg


 




0.142 s.