Allandcabinets European Style Lacquer Wall Mounted Washroom Bathroom Furniture Sets in China

Share on (1601366889829):


Price:

Quantity:


Product Overview

Description


Product Name
Custom Design Bathroom Vanity Cabinets With Factory Price
Door Finish Options
Painted/Stained solid wood,Laminated,Melamine,PVC
Door Materials
Solid wood,MDF,Plywood
Hardware Options
Blum Soft-close or China Top brand
Sink Options
Optional
Countertop Options
Quartz stone,Marble stone,Granite Stone,Sintered Stone
Lead Time
35 Days Fast Delivery
CHOSE YOUR VANITY BY DOOR DESIGNS
All vanities can be custom produced by AllandCabinet.Here are a part of the designs we make for your rereference.You can chose the vanity by different door design .If you can't find the right one,please contact AllandCabinet sales team to learn more.
COUNTERTOP & SINK & FAUCET OPTIONS
MORE STYLES CABINETRIES OPTIONS
If you also want to see other designs of cabinetries ,please check below items to see if
there is any style you prefer.
AllandCabinet can custom produce your dream cabinets with all types of design.
From modern to traditional ,from gloss to matt ,from lacquer finish to solid wood,from
framed to frameless.
HOW TO DESIGN AND GET YOUR CABINETRY
No matter what styles of cabinets your prefer,AllandCabinet team will be there to
help you to turn your idea into reality .We provide CAD&3d designing service which
will help you be aware of what your kitchen will look like.
ABOUT US
AllandCabinet is one of the best kitchen cabinets and wooden door factories in China.
Since 2008,we're focusing on designing and producing high quality custom cabinetries and wooden
doors for the market .
During the past years,we cooperate with builders,contractors ,designers and have a good experience
of 1,500+ projects from more than 50 countries.
We grow up together with our clients and success together with our clients.
FAQ
Q:What kind of cabinets AllandCabinet can design and prodice?
A:
Most of the cabinets can be customized according to your idea and taste .From modern to traditional designs,from lacquer finish to solid wood ,from framed to frameless construction,Allandcabinet will help you to transform your dream kitchen idea into reality .
For USA market Allandcabinet provides both European full access frameless kitchen cabinet and the American traditional Framed kitchen cabinet .
For Other market ,we prvoide all types design custom kitchen cabinets.Lacquer in mat and high gloss;Laminated finish kitchen cabine,2 PAC for Austrilia market,Memamine finish kitchen cabinets,solid wood kitchen cabinet and etc.
Design from mordern design kitchen cabinet ,to rustic design kitchen cabinet .

Q:How long I need to wait before I can get the kitchen cabinets?
A:
Depends on different design and quantity of the cabinets,normally it will take 30-45 days to finish the will take 30-45 days to finish the time on the sea,please let us know your address so that we can know how long it will be.

Q:What shipping service does AllandCabinet have ?
A:
We can do door to door shipping service to you if you don't want to spend much time and energy to deal with the shipping by yourself.A door to door delivery (DDU) means Allandcabinet will deliver the goods from from factory directly to your jobsite and handling all the issues during the process.

Q:What I need to do to get a kitchen cabinet design and quotation from AllandCabinet?
A:
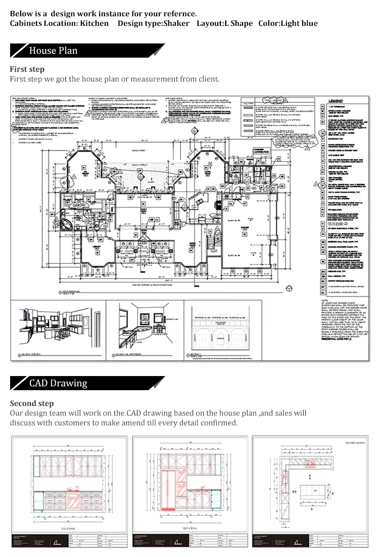
First,please send us your house plan or measurement of the kitchen .
If you already have kitchen cabinets design plans, you can send it to us.
If you don't have kitchen cabinets design plans, you can tell us your kitchen room size and shape, floor to celling height, window & wall location, kitchen appliance size if you have, we will make a design for you.
Second,materials and design selection.Allandcabinet provides full range kitchen cabinets materials, hardware, door style, countertop, toekick, packing for customers' options.You'll have a sales consultant and designer to help you to pick out what mate-rials will suit the best for your idea.Once you decide what materials you need and the design you prefer,a quotation will be provided based on above information.

Q:What Can I do if I am so busy and don't have much time to wait your reply ?
A:
You'll have professional sales con-sultant to be at your service.We can set up phone call&vedio call to discuss with you about thedesign and details .The time can be up to you to save your waiting time.

Q:Can I request third party to inspect the finished kitchen cabinetbefore delivery ?
A:
Yes,Allandcabinet will cooperate with the third party to get the cabinetries inspected in each detail.At the meanwhile Allandcabinet will trail and pre- assemble all the cabinets in factory before delivery to make sure all the cabin-etries are ftting perfect.Detailed inspection photos and videos will be provided to you ,as well.

Q:Does AllandCabinet has stallation and after sales service?
A:
If you have need assistance about how to install kitchen cabinets, we will instruct step by step until installation succeed.Or if anything broken in the delivery, you can take a photo to us, we will make a new part for you for free.

0.1981 s.