Share on (594210309):
Rapid Response Portable Decontamination Shower
1.Products information
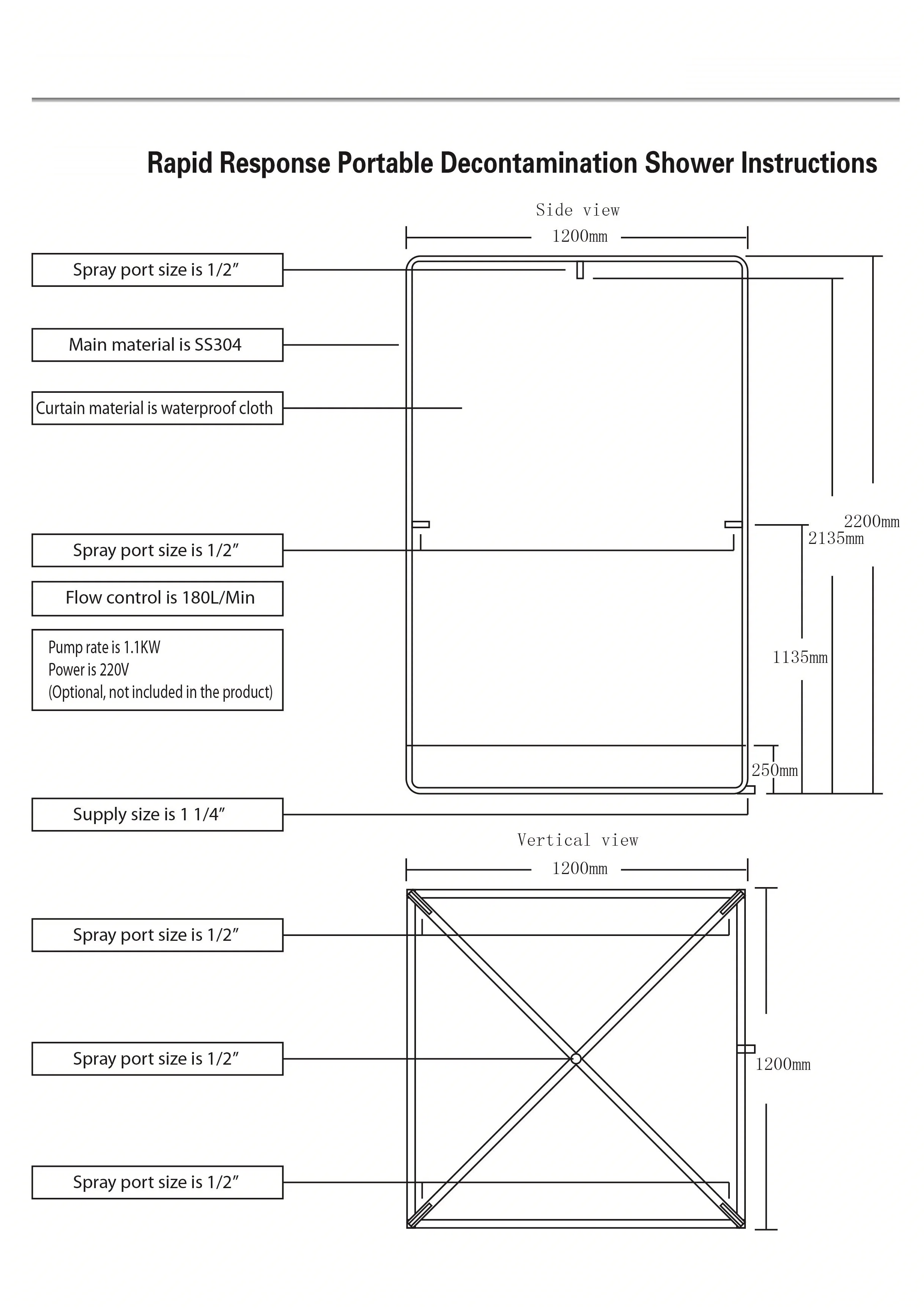
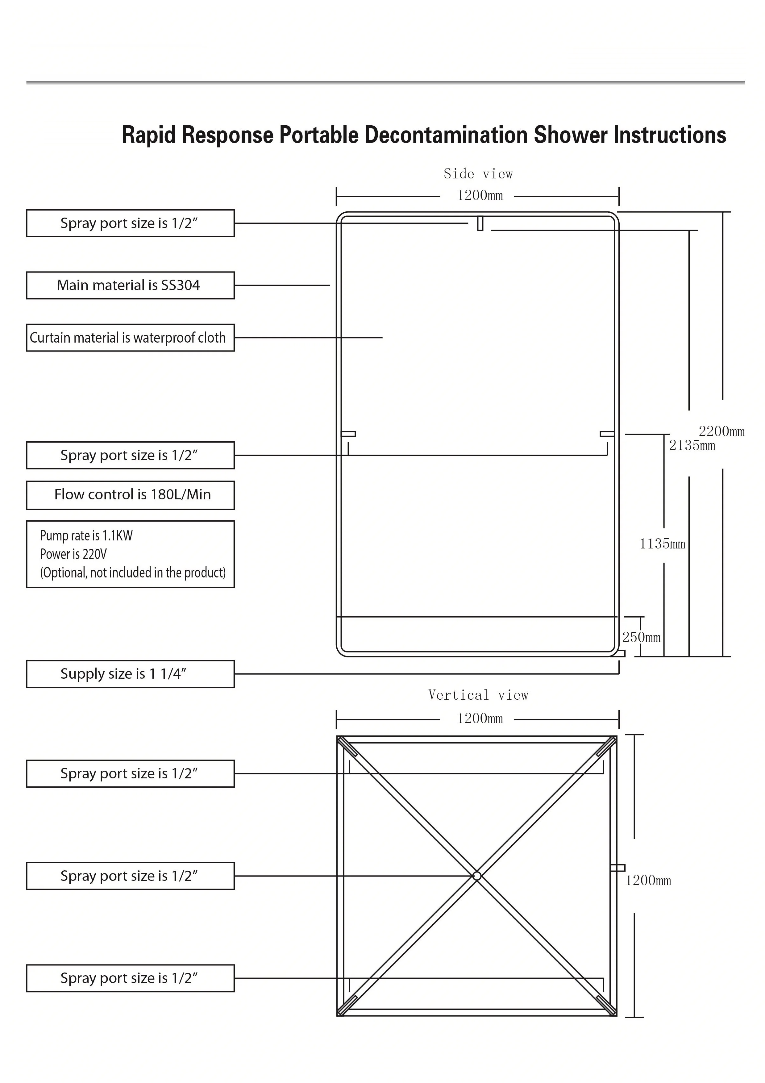
1.Technical data
Ideal for drenching emergency responders or injured workers. Compact and highly effective, this lightweight, economical shower can be set up by one person in under two minutes.
1. Material: SS304
2. Size: W1200mm*D1200mm*H2200mm
3. Water supply and outlet: 1 1/4″
4. Pressure: 0.8-1.5Mpa.
5. Flow control: 180L/Min
6. Power: 220V
7. Pump rate: 1.1KW

2.My company have many type emergency shower,* We have CE certificate for my products.
*The main pipes are made of steel, bowls and sprinkler head are made of ABS plastic. It is a substantial, portable and high corrosion- resistant eye wash.
*The eye wash can use for washing eyes, face and hands etc.
*Proper height of the bowl and two-head design is according to Ergonomic Principle. The height and the angle of the holes eye wash are designed in accordance with face proportion completely.
*The special shifted out-fall makes the water more softly, so that protecting the eyes and washing effectively.
*The pull-valve can be operated easily .When you use it , please open the cover and push the valve.
*The waste water will flow into bottom pipe from the recycle bowl, so that it can not pollute scene environment
1. Why are emergency showers or eyewash stations important?
Emergency showers and eyewash stations can help workers to flush away hazardous substances that can cause injury.The first 10 to 15 seconds after exposure to a hazardous substance, especially a corrosive substance, are critical. Delaying treatment, even for a few seconds, may cause serious injury.
2. Where are emergency showers or eyewash stations required?
Work areas and operations that may require these devices include:
Battery charging areas
Laboratories
Spraying operations
High dust areas
Dipping operations
Hazardous substances dispensing areas
3. What type of equipment should I choose?
Emergency showers are designed to flush the user's head and body. They should not be used to flush the user's eyes because the high rate or pressure of water flow could damage the eyes in some instances.
Eyewash stations are designed to flush the eye and face area only.
There are combination units available that contain both features: a shower and an eyewash.
4. How to use them in emergency situation?
1. To use emergency eye wash:
Immediately flush eyes for at least 15 minutes.
Keep the eyes open and rotate the eyeballs in all directions?to remove contamination from around the eyes. An injured person may need help holding the eyelids open.
Seek for medical care or see a doctor for further assistance
2. To use emergency shower:
Immediately flush the affected area with copious quantities of water for at least 15 minutes. Protect the eyes from inadvertent contamination.
Remove contaminated clothing, jewelry, and shoes. Use a clean lab coat to provide the victim with privacy and warmth.
Seek for medical care or see a doctor for further assistance
ANSI Z358.1; EN 15154-1:2006 + AC: 2014; PVoC (Inspected by SGS); ISO 9001:2008

New products from manufacturers at wholesale prices