Share on (60643945859):
CE approved 1600kg stable hospital elevaotor / hospital lift / hospital lift and elevator

Seiko quality:
*PM synchronous gearless traction motor,FUJI JAPAN VVVF drive,Energy-saving,low-noise,CE approved.
*Integrated control system,flexible design *VVVF door opener
Humanized system:
*Power failure emergency device *Power failure emergency lighting
*IR Multi-beam screen elevator door protection system
*Automatic adjustment of car lighting and fan(3 minutes),LED lighting
*Barrier-free feature(provide convenient and safe space for disabled people ,wheelchair users,visually handicapped people and stretcher users)
Application&Usage:
* Application: Highrise building/hospital/sanatorium/care home
* Usage: transport passengers,stretcher&beds,and other rescue and medical treament and equipment
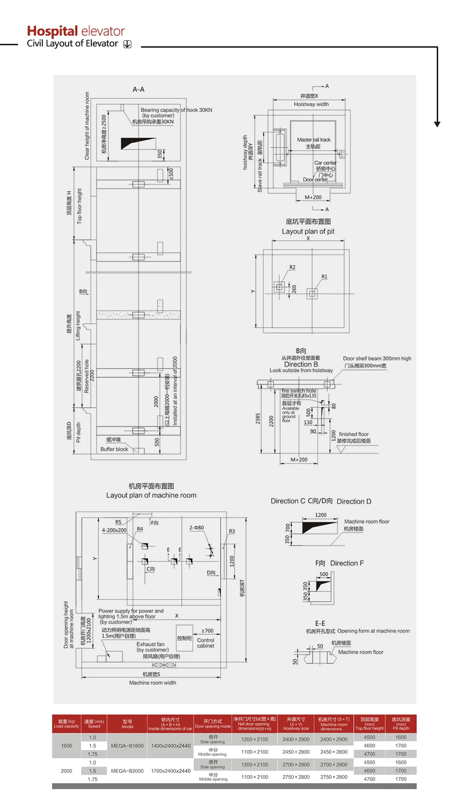
Specification:

Car decoration:



Layout:

Our patent and standard function

(1)Safety: we design many kinds of spare part to promise the elevator more dafety, like the traffic light function, when the light turn red in the doorsill, means that people could not get in or get out; when turn green, then pass.
(2)Three handrails in the cabin as standard, and we promote that no afraid of falling down elevator.
(3)Electric control cabinet door with safety running protection switch, no dust, no destroy, and promise its longlife service, any interested in this function, feel free to contact me, and I trust you will like it.


JFUJI Brief Introduction

Certification

Production progress

Trial assembling

Packing &loading

FAQ
| 1. Inquiry: Please send us inquiry from alibaba, we will send you quotation to you within 24 hours, when you sent us inquiry, please offer quantity, load capacity, rated speed, and how many floors, stops, openings. |
| 2. Production lead time: Standard product is about 25 days. |
| 3. Package: plywood case for separate packing mode. |
| 4. Payment: 30% T/T down payment and balance shall be paid before loading, please note that it will take 3-5 days for us to receive the dollar remittance, which not include the off day of bank. |
| 5. Warranty period: 12 months after the delivery. |
| 6. Installation and maintenance: We have the professional maintaining team, which can provide guidance for high quality installation and maintenance. |
| 7.Factory location: Foshan city which is one hour’s drive from Guangzhou city. |
| 8.Port of loading: Guangzhou,Shenzhen,foshan or as request. |

New products from manufacturers at wholesale prices