Gas Steam Boiler For Steam Turbine Prices

Share on (60776551657):


Price:

Quantity:


Product Overview

Description



Product Description




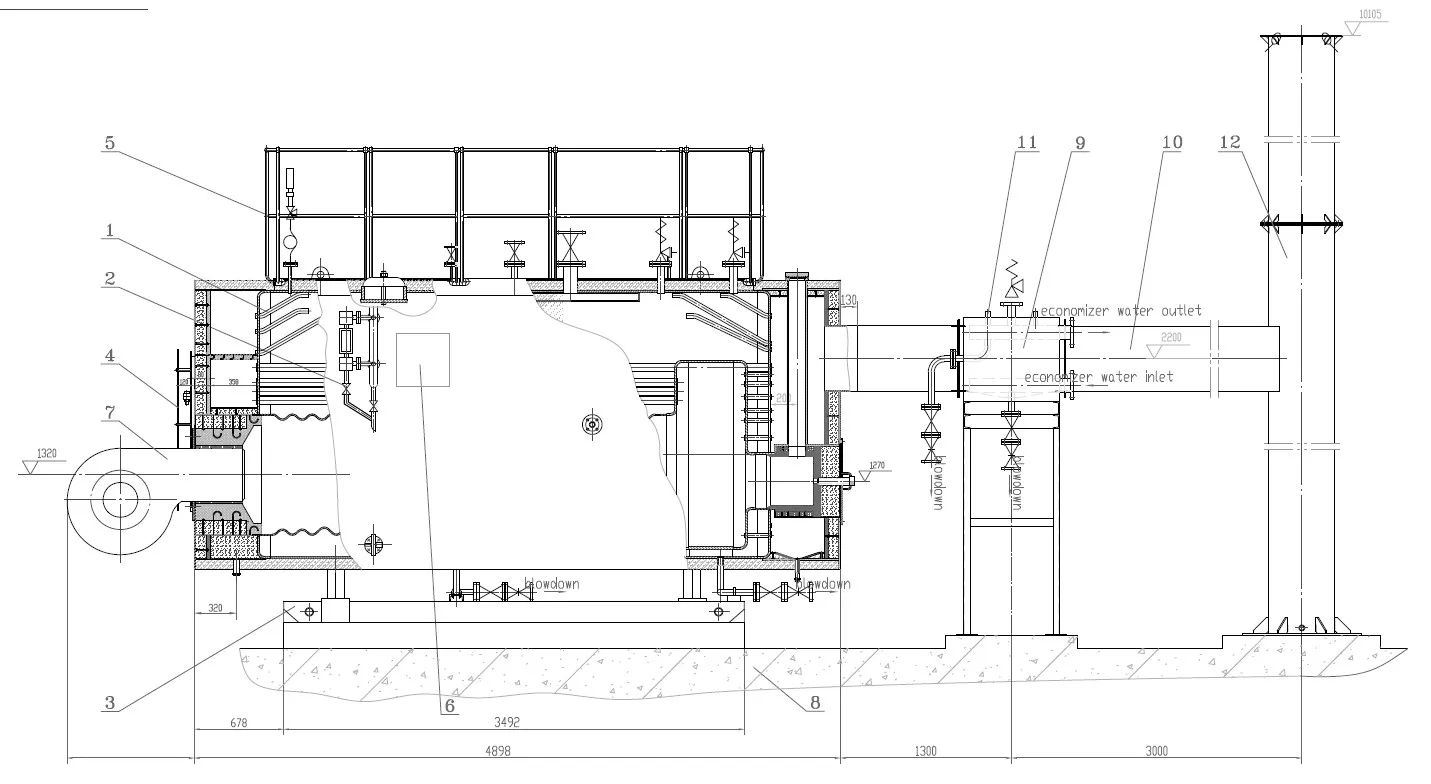
WNS series gas/oil fired steam boiler is three-pass full wet back structure, adopting large furnace and thick smoke pipe to increase the heat absorption of the furnace and effectively save energy and reduce consumption. The threaded pipe and corrugated furnace greatly enhance the heat transfer effect and greatly save fuel consumption. The main structure includes: boiler shell, ripple furnace, reversal chamber, thread smoke tube, etc. The burner brand can be chosen according to user’ s requirement.
WNS series gas/oil fired steam boiler is designed and optimized to produce low pressure steam or hot water with rated evaporation capacity from 1 to 20 ton/hour and rated pressure from 0.7 to 1.6MPa. The design heat efficiency is up to 95%.




Features:

1. There is more heating surface to spare to assure running of full load and overcharge.
2. The boilers are matched with imported burner of European brand. Proportional control, procedure ignition, automatic blowing and
flameout protective device. The burning efficiency is over 99.5%.
3. The furnace shape is fit for the shape of flame, avoiding the flame washing out the heating surface area.
4. The temperature of rear flue chamber is low so that the operators feel comfortable and safe.
5. Boiler adopts light quality thermal insulation material: aluminum silicate fiber, good heat preservation, less heat lost, high
heating efficiency.
6. The automatic control box adopts full automatic operating to actualize auto-igniting and auto-outage. And it also has manual
switch.
7. The automatic control protection procedure has full functions, such as automatic blowing, fuel gas leak alarm, safe operating
interlock protection, flameout protection, fuel gas pressure protection.
8. Boiler set the explosion-proof gate to keep safe.
9. Boiler is packaged leaving the factory, installed and adjusted in local.




Application:

WNS series gas/oil fired steam boiler is widely used in chemical industry, paper making industry, textile industry, food industry, pharmaceuticals industry, heating industry, construction industry.


Company Profile



As the National Hi-tech Enterprise certificated by the government and the 500 Largest Machinery Industrial Enterprises, Taishan Group is leading industrial boiler and pressure vessel designer, manufacturer and exporter dedicated to supply turnkey coal fired boiler and industrial boiler solutions to worldwide customers. We are always working harder to become the leader in providing large or medium customized industrial boiler solution to meet market demands since its foundation in 1994. Our products extend as far as industrial boiler, power station boiler, pressure vessel, transformer, high-voltage switch, electric wire and cable, residual heat refrigeration machine, etc.

Taishan Group has 1.02 million square meters factory with 0.6 billion dollars assets, we have 4,300 employees in 15 wholly-owned and holding subsidiaries, including Taishan Boiler Co., Ltd. Weihai Shidao Heavy Industry Co., Ltd. Shandong Luneng Taishan Power
Equipment Co., Ltd. etc. Taian Boao International Trade Co., Ltd. is the wholly owned subsidiary company of Taishan Group who is responsible for exporting and import business.


Workshop view




Automatic welding machine for pipes
Automatic rolling machine for boiler drum
Automatic drilling machine for boiler drum and header


Automatic cutting machine for drum plate
Oil hydraulic machine
Laser cutting machine


Certifications


ASME "S"
ASME "U"
ASME "U2"


ISO 9001
ISO 14001
ISO 18001


Our clients and exhibition






Other products


Oil/gas-fired steam boiler with double drum
Coal-fired steam boiler
CFB boiler


Biomass boiler
Thermal oil boiler
Bullet tank


Packing & Delivery




The boiler proper and auxiliary equipment will be transported to the port by trucks. Then, the boiler proper will be fixed on the frame container, and the auxiliary equipment and installation material will be put into the container.


FAQ


1. How to get a boiler price?
Pls tell us below information to confirm the boiler model first, and then offer the right boiler price:
1.1 Which fuel you prefer for the boiler, coal, biomass, gas & oil, or others?
1.2 The boiler capacity
1.3 The boiler pressure
1.4 The boiler application

2. How long is the product warranty period ?
Our boilers have one year warranty period or depending on your requirements.

3. What about after-sale service?
We will supply professional after-sale service team as soon as we receiving your problem feedback,
and dispatch our engineers to your country and solve your problems right now.

4. What's the advantages of your company?
4.1 Reasonable heat surface and burning device, heat efficiency is 4%~5% higher than national standard.
4.2 Reasonable flue gas speed, heating surface without ash deposition and no abrasion, under the condition of no soot-blowing, the
boiler can work full-load, high-efficiency and safety in long term.
4.3 The big and tall boiler furnace can be designed according to the different fuel to improve the burning rate of fuel and remove
black smoke.
4.4 All independent loop and reasonable coal boiler injected circulation are specially designed and adopted for the hot water
boilers. The medium speed in loop of heat surface is higher than national standard
4.5 1-20T/H & 0.7-14MW boiler adopt big and high strength grate, add rolling device improves the boilers’ 4.6 Over 20T/H & 14MW
boiler adopt flake type or beam type chain grate, less coal leakage, convenient burning adjustment. Closed soot cleaning avoid
second pollution and save time and labor.
4.7 Dust inertia separation at the furnace outlet can reduce exhaust gas concentration and lessen abrasion of rear heat surface.
4.8 Compact structure makes its installation volume smaller than other types of boilers, it will shorten installation period and
lower boiler room cost.
4.9 Big water volume benefits for power-off protection, high ability suitable for load changing.


Contact information




Product Description




WNS series gas/oil fired steam boiler is three-pass full wet back structure, adopting large furnace and thick smoke pipe to increase the heat absorption of the furnace and effectively save energy and reduce consumption. The threaded pipe and corrugated furnace greatly enhance the heat transfer effect and greatly save fuel consumption. The main structure includes: boiler shell, ripple furnace, reversal chamber, thread smoke tube, etc. The burner brand can be chosen according to user’ s requirement.
WNS series gas/oil fired steam boiler is designed and optimized to produce low pressure steam or hot water with rated evaporation capacity from 1 to 20 ton/hour and rated pressure from 0.7 to 1.6MPa. The design heat efficiency is up to 95%.




Features:

1. There is more heating surface to spare to assure running of full load and overcharge.
2. The boilers are matched with imported burner of European brand. Proportional control, procedure ignition, automatic blowing and
flameout protective device. The burning efficiency is over 99.5%.
3. The furnace shape is fit for the shape of flame, avoiding the flame washing out the heating surface area.
4. The temperature of rear flue chamber is low so that the operators feel comfortable and safe.
5. Boiler adopts light quality thermal insulation material: aluminum silicate fiber, good heat preservation, less heat lost, high
heating efficiency.
6. The automatic control box adopts full automatic operating to actualize auto-igniting and auto-outage. And it also has manual
switch.
7. The automatic control protection procedure has full functions, such as automatic blowing, fuel gas leak alarm, safe operating
interlock protection, flameout protection, fuel gas pressure protection.
8. Boiler set the explosion-proof gate to keep safe.
9. Boiler is packaged leaving the factory, installed and adjusted in local.




Application:

WNS series gas/oil fired steam boiler is widely used in chemical industry, paper making industry, textile industry, food industry, pharmaceuticals industry, heating industry, construction industry.


Company Profile



As the National Hi-tech Enterprise certificated by the government and the 500 Largest Machinery Industrial Enterprises, Taishan Group is leading industrial boiler and pressure vessel designer, manufacturer and exporter dedicated to supply turnkey coal fired boiler and industrial boiler solutions to worldwide customers. We are always working harder to become the leader in providing large or medium customized industrial boiler solution to meet market demands since its foundation in 1994. Our products extend as far as industrial boiler, power station boiler, pressure vessel, transformer, high-voltage switch, electric wire and cable, residual heat refrigeration machine, etc.

Taishan Group has 1.02 million square meters factory with 0.6 billion dollars assets, we have 4,300 employees in 15 wholly-owned and holding subsidiaries, including Taishan Boiler Co., Ltd. Weihai Shidao Heavy Industry Co., Ltd. Shandong Luneng Taishan Power
Equipment Co., Ltd. etc. Taian Boao International Trade Co., Ltd. is the wholly owned subsidiary company of Taishan Group who is responsible for exporting and import business.


Workshop view




Automatic welding machine for pipes
Automatic rolling machine for boiler drum
Automatic drilling machine for boiler drum and header


Automatic cutting machine for drum plate
Oil hydraulic machine
Laser cutting machine


Certifications


ASME "S"
ASME "U"
ASME "U2"


ISO 9001
ISO 14001
ISO 18001


Our clients and exhibition






Other products


Oil/gas-fired steam boiler with double drum
Coal-fired steam boiler
CFB boiler


Biomass boiler
Thermal oil boiler
Bullet tank


Packing & Delivery




The boiler proper and auxiliary equipment will be transported to the port by trucks. Then, the boiler proper will be fixed on the frame container, and the auxiliary equipment and installation material will be put into the container.


FAQ


1. How to get a boiler price?
Pls tell us below information to confirm the boiler model first, and then offer the right boiler price:
1.1 Which fuel you prefer for the boiler, coal, biomass, gas & oil, or others?
1.2 The boiler capacity
1.3 The boiler pressure
1.4 The boiler application

2. How long is the product warranty period ?
Our boilers have one year warranty period or depending on your requirements.

3. What about after-sale service?
We will supply professional after-sale service team as soon as we receiving your problem feedback,
and dispatch our engineers to your country and solve your problems right now.

4. What's the advantages of your company?
4.1 Reasonable heat surface and burning device, heat efficiency is 4%~5% higher than national standard.
4.2 Reasonable flue gas speed, heating surface without ash deposition and no abrasion, under the condition of no soot-blowing, the
boiler can work full-load, high-efficiency and safety in long term.
4.3 The big and tall boiler furnace can be designed according to the different fuel to improve the burning rate of fuel and remove
black smoke.
4.4 All independent loop and reasonable coal boiler injected circulation are specially designed and adopted for the hot water
boilers. The medium speed in loop of heat surface is higher than national standard
4.5 1-20T/H & 0.7-14MW boiler adopt big and high strength grate, add rolling device improves the boilers’ 4.6 Over 20T/H & 14MW
boiler adopt flake type or beam type chain grate, less coal leakage, convenient burning adjustment. Closed soot cleaning avoid
second pollution and save time and labor.
4.7 Dust inertia separation at the furnace outlet can reduce exhaust gas concentration and lessen abrasion of rear heat surface.
4.8 Compact structure makes its installation volume smaller than other types of boilers, it will shorten installation period and
lower boiler room cost.
4.9 Big water volume benefits for power-off protection, high ability suitable for load changing.


Contact information




0.2128 s.