Share on (62210741177):
XGN17-12 medium voltage switchgear is mainly used as reception and distribution of power supply of 3.6- 12KV, 3 Phase AC, 50Hz indoor system.
It is specially applied to cases where frequent operations are needed. The main switch applies ZN28A-12 segmental type vacuum circuit breaker with Cd10 electromagnetic operational mechanics, CT8/CT19A (B) spring operational mechanics, ZN28-12 series integral vacuum breaker (with CD17 Electromagnetic Operational mechanics, CT17/CT19 spring operational mechanics) or applies ZN63-12(VS1) vacuum circuit breaker. Isolation switch applies GN30-10 rotating style and GN22-10 high current isolation switch.



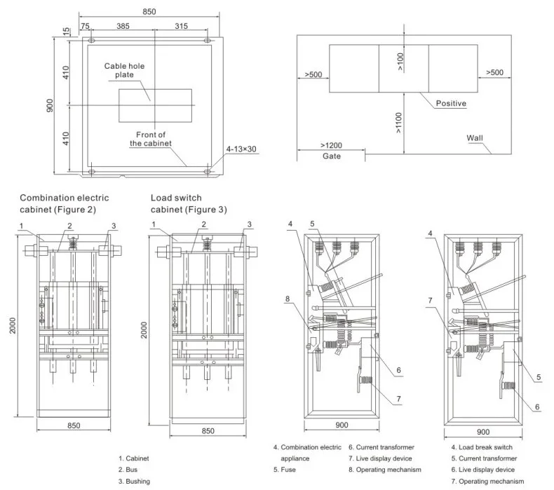
1. This switchgear is case metal-enclosed structure. In accordance with the national standard GB3906 and international standardIEC298, protection degree IP2X. The metal-enclosed structure effectively prevents short-circuit failure by intruders .
2. When air insulation distance between polar to polar or polar to ground ≤125mm, porcelain support insulators (≥8000N) is applied. All these ensure higher insulation intensity and stability.
3. Breakers, both upper and lower insulation switches, grounding switches and interlock mechanisms between doors all takes force mechanical lock mode to meet the requirement of "five- prevention".


Boerstn Electric mainly leading & professional is engaged in manufacturing,development,solution ,maintenance & marketing of LV.MV & H.V switchgears,substations,transformers..etc as following:


1. Are you the manufacturer or trader?
Boerstn is a leading & professional manufacturer located in Zhejiang province of China.
2. What is your main markets?
Our main market is in home & a half in South-East Asia, Middle East,West-Africa, East-European countries & Some South America..etc
3. What is your delivery & after-sales serive?
The delivery is according to order qty, normally for containers order we need 1 month. Per each month 20 containers (20'ft or 40'ft)are no problem for us . We can answer user's question and solve their problem in 24 hrs per each day and give full technical support in time to all of our products.
4. What is your product warranty?
Firstly we have quality certificates like CCC, ISO9001..etc for our switchgears & power equipments ,have CE,Rohs,CB,TUV,Kema..for their electrical parts and accessories. Secondly we supply 1 year quality guarantee,during this period we supply free repair,maintenance and technical support.Certainly for some of switchgears and power equipments, their using life is over 20 years,no problem.
5.Do you accept OEM and ODM?
Yes. Our R & D team owns latest technology ,can develop & produce products as customers' drawing & under their brand
6. What is your payment terms?
a. 30% T/T in advance as deposit ,balanced against the shipping documents
b. irrevocable L/C at sight for order which amount is over 100 thousand USD
C. for old business partner,we can negociate together for other special terms
d . For samples, we accept T/T,Western union, moneygram, paypal..etc
7. If i want to visit you ,how to do ?
Our company is located in Yueqing city of Zhejiang province China,which is about 40 minutes by car to Wenzhou air port & 30 minutes from Yueqing train station. About 1 hrs by air from Shanghai international airport and 1 hrs from Ningbo by train. If you need invitation letter before come to China,we can give it to you.

New products from manufacturers at wholesale prices