Share on (62326953788):


CONTAINER DOOR DETAILS PHOTOS





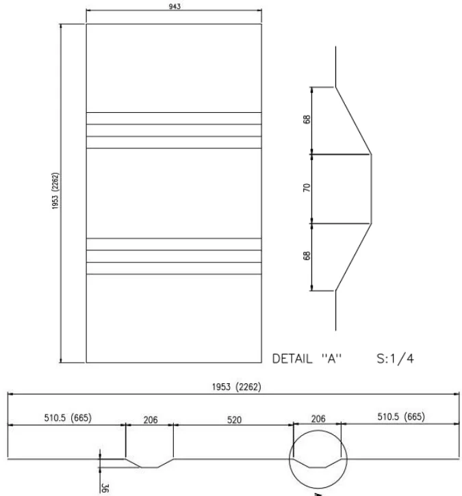
THE CONTAINER DOOR PANEL PRODUCTS PARAMETER AS BELOW:
| Part NO. | Spec. | Weight |
| CZPJ-010-2A | T2.0X943X1957 for 20”&40” | 30.795KGS |
| CZPJ-010-2B | T2.0X943X2258 for 40”HC | 30.480KGS |
| CZPJ-010-2A | T2.0X943X1957 for 20”&40” | 30.795KGS |
| CZPJ-010-2B | T2.0X943X2258 for 40”HC | 30.480KGS |
CZPJ-010-3A | T2.0X943X1957 for 20”&40” | |
CZPJ-010-3B | T2.0X943X2262 for 40”HC |

THE DRAWINGS OF CONTAINER DOOR PANEL




WORKSHOP SHOP REAL SHOT

OUR CUSTOMERS VISIT OUR FACTORY


New products from manufacturers at wholesale prices