Сохранить в закладки 1908140320:
1. Specifications
| Persons | Rated Capacity (kg) | Rated Speed (m/s) | Door opening size (mm) | car size(mm) | Hoistway size (mm) | Machine room size(mm) | Top floor height(mm) | Pit depth(mm) | Max traveling height (m) |
| D.WxD.H | C.WxC.DxC.H | H.WxH.D | MR.WxMR.DxMR.H | ||||||
| 8 | 630 | 1 | 800x2100 | 1400x1100x2400 | 2000x1700 | 2000x3000x2200 | 4400 | 1400 | 40 |
| 1.5 | 4500 | 1500 | 60 | ||||||
| 1.75 | 4600 | 1500 | 70 | ||||||
| 10 | 800 | 1 | 800x2100 | 1400x1350x2400 | 2000x1950 | 2000x3400x2200 | 4400 | 1400 | 40 |
| 1.5 | 4500 | 1500 | 60 | ||||||
| 1.75 | 4600 | 1500 | 70 | ||||||
| 2 | 2000x2150 | 2000x3400x2500 | 4900 | 1700 | 100 | ||||
| 2.5 | 5100 | 1900 | 120 | ||||||
| 13 | 1000 | 1 | 900x2100 | 1600x1400x2400 | 2200x2000 | 2200x3450x2200 | 4400 | 1400 | 40 |
| 1.5 | 4500 | 1500 | 60 | ||||||
| 1.75 | 4600 | 1500 | 70 | ||||||
| 2 | 2200x2200 | 2200x3450x2500 | 4850 | 1700 | 100 | ||||
| 2.5 | 5100 | 1900 | 120 | ||||||
| 16 | 1250 | 1 | 1000x2100 | 1700x1500x2400 | 2300x2200 | 2300x3450x2200 | 4500 | 1400 | 40 |
| 1.5 | 4600 | 1500 | 60 | ||||||
| 1.75 | 4700 | 1500 | 70 | ||||||
| 2 | 2500x2400 | 2300x3450x2500 | 4900 | 1700 | 100 | ||||
| 2.5 | 5100 | 1900 | 120 | ||||||
| 21 | 1600 | 1 | 1100x2100 | 1900x1800x2400 | 2500x2500 | 2500x3750x2200 | 4500 | 1400 | 40 |
| 1.5 | 4600 | 1500 | 60 | ||||||
| 1.75 | 4700 | 1500 | 70 | ||||||
| 2 | 2600x2650 | 2500x3750x2500 | 4900 | 1700 | 100 | ||||
| 2.5 | 5100 | 1900 | 120 |
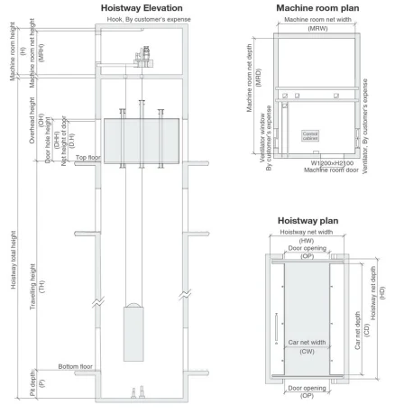
2. Constraction Layout Drawing

3.Advantages of Delfar Passenger elevator
3.1 Be sure of success,multiple protections-Control system.
3.2 Green environment-friendly energy-saving device--Effect energy-saving.
3.3 Beautiful and gorgeous--Industrial modeling design.

4.Optional:
4.1 car


4.2 Signification



4.3 Landing door
4.4 Ceiling&Floor&Handrail
1.Company information
Delfar Elevator Co., Ltd. is a professional elevator company who designs and manufactures complete elevators, escalators and moving walks, as well as elevator parts. The company covers a land area of over 40,000 square meters with more than 17,000 square meters of factory houses and 3,000 square meters of office area. Currently, 135 employees work for DELFAR, which includes 52 engineering technicians.
2.Certificates



1.Delivery date:30 days after deposit.
Новинки товаров от производителей по оптовым ценам