Share on (340441187):
QTK25 self erecting Crane is a new type of tower crane developed by our company.
QTK25 is an entirely delivered and quickly erected machine for vertical and horizontal transportation.
It is suitable for civilian constructions from 7 to 10 storeys(10-11storeys when jib upwards,
less than 8 storeys when jib is level). Besides, QTK20 can also be used for transportation and
stack of goods in workshops, freight yards,rail stations,docks etc. It is also a kind of mobile hoisting
and conveying machine.

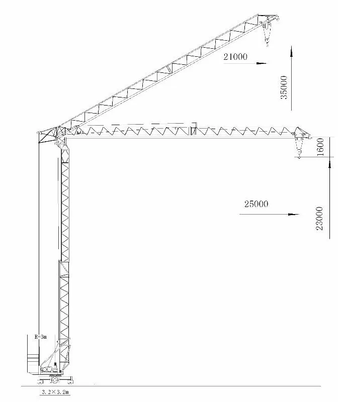
Items | Unit | Value |
Lifting Moment | kN·m | 250 |
Rated Lifting Capacity | kN | 10-30 |
Working Radius(Level Jib/30°upwards) | m | 3-25/(21) |
Hoisting Height(Level Jib/30°upwards) | m | 23/35 |
Gauge *Axle Base | m | 3.2*3.2 |
Max. working wind scale |
| 6 |
Dead Weight | t | 11.5 |
Counter Weight | t | 13.5 |
Tail Radius | m | 3 |
Travelling Distance of Cable Drum | m | 20 on each side |
Rail Model | kg/m | 38,42 |
Rated Power(380V/50Hz/3P)(Optional) | kW | 20 |

New products from manufacturers at wholesale prices