Share on (62323819978):

The high efficiency thickener used for dehydration processing of fine mineral and tailings mainly used in the process of concentrate and tailings’ dehydration, meanwhile it can also be used for dehydration, desliming, and sewage treatment in hydrogenated industry and coal separation plant.





(1)Deaeration cell is provided to avoid bobble on which solid particles may attach and settls as “parachute phenomena”.
(2)The mineral feeding pipe is beneath the liquid surface to provent air to be brought in by feeding.
(3)Inner overflow weir is equipped to let slurry flow on pre-designed route, avoiding “short circuit”.
(4)The pattern of the overflow weir is made into indented shape, eliminating suction phenomena in some part of draining induced by unleveled overflow weir.
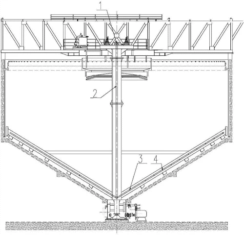
Working principle
In the bottom center of a discharge concentration of the product discharge bucket, pond surrounding the upper ring with the overflow tank. Concentrated in the central pool has a vertical axis, the axis of the cross at the end of a fixed frame rake, rake the following aircraft equipped with a scraper. Rake into a horizontal plane and 8 ° -15 °. Fixed by the vertical axis in the truss on the motor reducer by the middle gear driven rotary. When the vertical axis rotation, the pulp along the truss to the mine shafts into the center of the bowl pool, and to concentrate around the pool flows. Pulp in the settlement of solid particles gradually condensed into the bottom of the pool by the following scraper plane rake scraping into the center of the pool discharge bucket with sand pump. To clarify the above clarificationwater from the Department of the Central Bank out of the overflow tank. In the thickener have been concentrated load or materials, the discharge will fight blockage and rake frame distortion. To prevent this phenomenon, there are signals of safety devices and equipment to upgrade rake frame.
Model | Inside | Tank | Size of | Capacity | Motor | Motor | Steel | Weight |
NZSG-2.5 | 2500 | 1850 | 4.9 | 5-22.4 | Y90L-6 | 1.1 | 1000 | 2225 |
NZSG-3A | 3000 | 1800 | 7 | 5-23.3 | Y100L-6 | 1.5 | 1664 | 3168 |
NZSG-3 | 3600 | 1800 | 10.2 | 5-28.5 | Y100L-6 | 1.5 | 2098 | 3640 |
NZSG-5 | 5000 | 2956 | 16 | 16-90 | Y90L-4 | 1.5 | 5160 | 8031 |
NZSG-6 | 6000 | 2956 | 28.3 | 98 | Y90L-4 | 1.5 | 5769 | 9200 |
NZSG-7 | 7000 | 3000 | 38.5 | 140 | Y112M-6 | 22 | 8548 | 13361 |
NZSG-8 | 8000 | 3318 | 50.2 | 185 | Y132S-6 | 3 | 12966 | 19289 |
NZSG-9 | 9000 | 3376 | 63 | 210 | Y132S-6 | 3 | 15304 | 21960 |
NZSG-12 | 12000 | 3600 | 113 | 370 | Y132S-6 | 3 | 25589 | 34823 |
NZSG-15 | 15000 | 4000 | 176 | 580 | Y132M2-6 | 5.5 | 35800 | 58800 |
NZSG-18 | 18000 | 4400 | 255 | 960 | YCT200-413 | 7.5 | 51000 | 75600 |
NZSG-20 | 20000 | 4400 | 315 | 1400 | Y160M2-8 | 7.5 | 62000 | 83550 |
1.International export standard packing of high efficiency thickener used for dehydration processing of fine mineral and tailings
2.small parts are woodened box package
3.main engine nude,container,or customer 'requirement

Henan Zoomjo Mining Machinery Manufacturing Co., Ltd, as a joint-stock enterprise, is focusing on the production of large-sized mining machinery including ball mill, rotary kiln, etc. Located in jiaozuo city, a industry city with a long history for large equipment and machinery manufacturing, Zoomjo is becoming more and more connected to the world. For more details, please refer to our website: www.zoomjomac.com

Q1.How long is the warrenty of your equipments?
The warranty period of our equipments is one year.
Q2. What Information should customers give us, So that we can be able to provide you suitable quotation and service.
What minerals are you separating?
What's the maximum size of your raw minerals?
How much capacity do you need per hour for your project?
Q3.Can you test our samples?Do you provide beneficiation flow chart?
Yes. You can send your samples to us for test and analysis. Our experienced engineers are specialized in designing process flow for various ores beneficiation, including iron ore, tin ore, copper ore, gold ore, lead zinc ore, manganese ore, etc.
Q4. If I need the complete crushing plant can you help us to build it?
A: Yes, we can help you combine a complete crushing line and give you related professional advices as long as you need. We had already build many mining projects in China & Overseas.
New products from manufacturers at wholesale prices