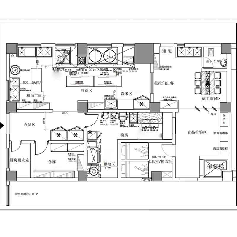
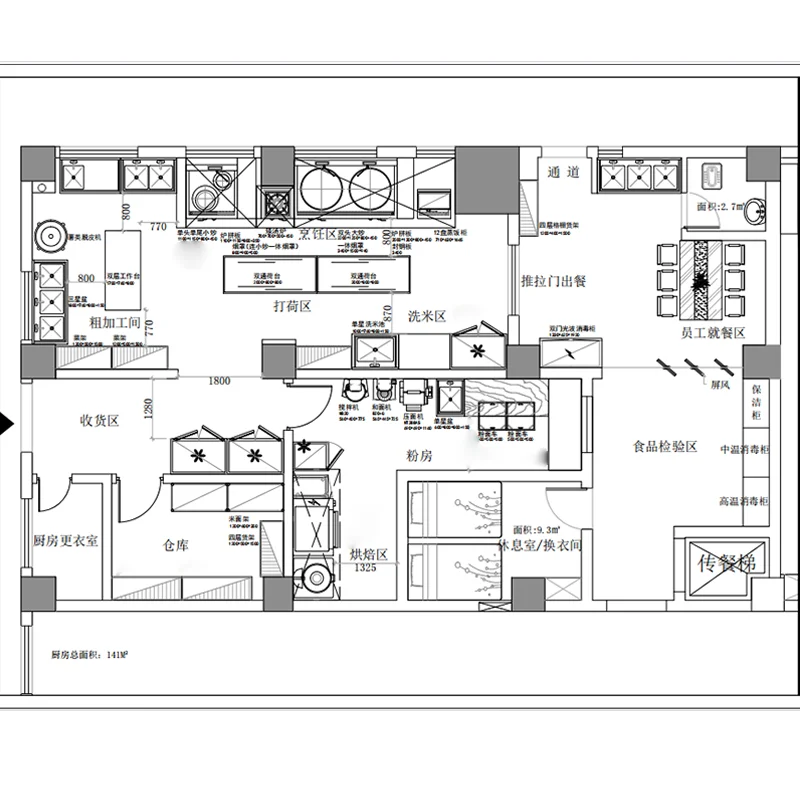
Shenzhen,Jinqi,Commercial,Kitchen,Engineering,Co.,Ltd.

0.007 s.