oil distillation equipment stainless steel double single effect falling film vacuum evaporator

Share on (1600309934740):


Price:

Quantity:


Product Overview

Description



Products Description


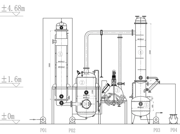
oil distillation equipment stainless steel double single effect falling film vacuum evaporator
Falling film evaporation is to add the material liquid from the upper tube box of the heating chamber of the falling film evaporator, and distribute it evenly into the heat exchange tubes through the liquid distribution and film forming device. Under the action of gravity, vacuum induction and air flow, it becomes a uniform film. Flow from top to bottom. During the flow process, it is heated and vaporized by the heating medium in the shell side. The generated steam and liquid phase enter the separation chamber of the evaporator. After the vapor and liquid are fully separated, the steam enters the condenser for condensation (single-effect operation) or enters the next-effect evaporator as The medium is heated to achieve multi-effect operation, and the liquid phase is discharged from the separation chamber.




Product Paramenters


No.
project
evaporator
condenser
1
material name

--
2
PH value
/
--
3
discharging way

--
4
secondary steam temperature of each effect (℃)
70±2 vapor phase
70±2
5
temperature of each effective material liquid (℃)
75±2 liquid phase
50±2 liquid phase
6
vacuum degree (-Mpa)
~0.050
~0.090
7
the boiling point of each effector liquid increased (℃)
~5
--
8
loss of each effect temperature difference(℃) 
2.0
--
9
heat loss of each effect (%)
8%
--
10
effective heat transfer temperature difference of each effect (℃)
30
--
11
each effect evaporator circulation type
falling film circulation
--
12
Heat transfer coefficient of each effect (W/m2。k)
1150
--




Company Profile


 Wenzhou CHINZ Machinery Co.,Ltd is a high technology enterprise integrating biochemical pharmaceutical equipment, milk food and beverage industry, chemical industry and other hygiene equipment design manufacturing service. The enterprise has the subsidiary companies: Mechanical engineering research and development center, fluid equipment processing testing center, machinery manufacturing center. The company provides the advanced technology and services for the customers, Through  Unceasingly enterprising for more than 10 years, the company has established a dynamic science and technology innovative team and several technologies of the products have got the national patent.
The company is the national high and new technology enterprise, CHINZ enterprise has been wholeheartedly dedicating to the mechanical engineering and high precise hygienic fluid equipment research and development for a long time. Through technical accumulation and external cooperation for many years, the company has successfully developed various specifications of methanol and ethanol recovery unit,  low temperature enrichment device, heat pump water alcohol double effect concentrator, and multifunctional countercurrent extraction tank group, one piece style Functional application machine set, dynamic countercurrent polymeric adsorbent machine set and other equipment, with advanced equipment manufacturing technology and substantial product processing experience, based on absorbing the advanced technology, CHINZ enterprise continues improvement, perfects the design and processing. We can customize the products according to the customer development strategy and the practical need, and supervise each phase of the construction project, ensure to provide the reasonable, energy saving, security,environmental protection,high quality engineering.




Product packaging




FAQ


1. Q : How can customer visiting our factory?
 A :  We are in Wenzhou city, Zhejiang Pr.China.which is very near to Shanghai.
From Shanghai,China to our city, it will take 1 hour by air, and 4 hours by fast train.
The name of airport is Wenzhou Longwan International Airport.
The name of fast train station is Wenzhou Nan train station.
And our factory is very close to airport only 15 minutes by car, and 1 hour by car from fast train station.

2. Q : How can customer know the processes of order?
A :  We will take photo or video during manufacturing every two weeks to make customer clear about the order. 
 When goods is finished,we will take more detailed photos or video for inspect. 
You can also come to our factory to inspect by yourself.

3. Q : Do you supply installation equipment in oversea?
A :  Yes, if need, we can also send our installation engineer to your factory to help you do installation and testing. 
And you need to provides round-trip ticket and accommodation for our engineer.
The extra salary of one installation engineer is 200USD/day.

4. Q : How to control quality?
A : All material we use has material certification.
Before any piece of equipment leaves CHINZ. 
 It goes through a complete quality and assurance control inspection. 
This inspection assures your equipment meets all specifications and is in proper working order before it leaves our facility and arrives at your door.

5. Q : What is the shipment schedule?
A :  We will send you photographs of your order being loaded into the shipping container at the factory.
The shipping container will generally leave port 3-4 days after loading. 
We will send you a bill of lading and final statement of account within one week of that time. The bill of lading will include the shipping container numbers. You can track your shipping container.
Approximately 10 days prior to delivery, we will send you an ETA (Estimated Time of Arrival) notice from the shipping time. 
Please remember that the listed delivery date is only an estimate, and is subject to port unloading schedules, customs processing, and the dictates of the local delivery truck company.
You will be directly contacted by the shipping company's local truck delivery services approximately 48 hours prior to the date of delivery to schedule a delivery time.
If you need to delay the final delivery, there will be a "pull" fee of approximately $100, and a storage fee of approximately $150 per shipping container per day.

6. Q : Which material are the equipment made of?
A : Stainless steel 304/ stainless steel 316/ Ti


Recommend Products




0.1993 s.